Toimitilat Pirkkala, Aviacenter

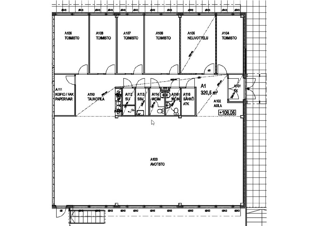
Vuokrataan Varasto, Liiketila, Toimistotila, Varasto / Tuotantotila, Liikuntatilat, Muu tila, Työpiste 322m²

Heti vapaana ilmastoitua, nykyaikaista toimistotilaa Tampereen lentokentän läheisyydessä.

Ent. Teboil Oy.

Ilmaista paikoitustilaa runsaasti.

Toimitilan tiedot

  • Kohde
    Aviacenter
  • Käyntiosoite
    Myllyhaantie 6 Myllyhaantie 6, 33960 Pirkkala
  • Tilatyyppi
    Varasto, Liiketila, Toimistotila, Varasto / Tuotantotila, Liikuntatilat, Muu tila, Työpiste
  • Pinta-ala
    322m²
  • Kerros
    1
  • Hissi
    Ei
  • Vapautuminen
    Heti vapaa
  • Kuukausivuokra
    3381 € / kk + alv 25,5% + kulut
  • Vuokrahinta m²
    10,50 € / kk + alv 25,5% + kulut
  • Energiatodistus
    Ei lain edellyttämää energiatodistusta

Sijainti

Myllyhaantie 6, Pirkkala, Suomi